-a7cffb6.jpg/:/cr=t:18.68%25,l:17.68%25,w:76.34%25,h:76.34%25/rs=w:1240,cg:true,m)
Brand new apartments available at Franklin Flats. Located in Kingsdale neighbourhood at 55 Franklin St. S. Kitchener. Excellent location with great access to shopping, parks, transit and more. Barrier free units are also available.
Unit Features:
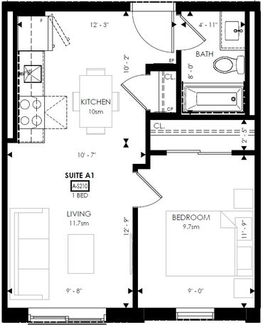
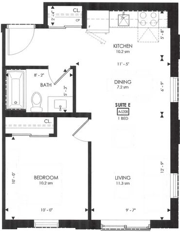
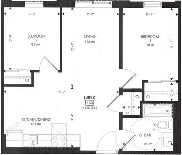
● 1 and 2 Bedroom Units
● In building laundry
● Fixed rate electricity $30 per month and high-speed internet at $49 per month
● Heating, cooling and water included
● Parking available at $80 per month
Building Features:
● Steps to groceries, drugstore and GRT stops
● Nearby Amenities
· Wilson Park and Kingsdale Community Centre
· Fairview Park Mall
· Fairview LRT
● Eco-friendly construction including triple pane windows, rain water recovery and solar panels
● Secure bicycle storage
Phase 3 Units Now Available!






Check out this great video






Check out this great video






